X8400 外観

映像美を支える機能美
デザイン
住空間との調和を目指した、水平垂直のラインを基調としたデザイン。
レグザの映像美と先進性を、あたかも映像だけを切り取ったようなベゼルレスデザインと、その画面を支えるメタルビームに集約し、精緻に表現。重量感を感じさせない控えめなスタンドデザインによって、様々なインテリアに融合します。

安心してテレビを楽しむために

転倒防止機能
レグザは「転倒防止機能」を備えています。テレビをお部屋に設置する際にご利用いただき、安心してテレビ視聴をお楽しみください。
 
※ 転倒防止機能は、テレビの転倒による破損や、危害の軽減を意図していますが、その効果を保証するものではありません。
design-02
1 転倒防止クリップ
付属のクリップとネジ(長)を使って、市販のひもで壁や柱に固定できます。
design-03
2 転倒防止バンド
転倒防止用フックを取りはずし転倒防止用バンドを左右に取りつけて、付属のネジ(長)で固定できます。

寸法図


55V型X8400

外形寸法
幅122.6cm×高さ75.3cm×奥行き22.9cm
X8400-design-01
  • 正面図はスタンドを含めない外形最大寸法です。
画面サイズ
幅121.0cm×高さ68.0cm/対角138.8cm
X8400-design-02
  • 側面図はスタンドを含む外形最大寸法です。
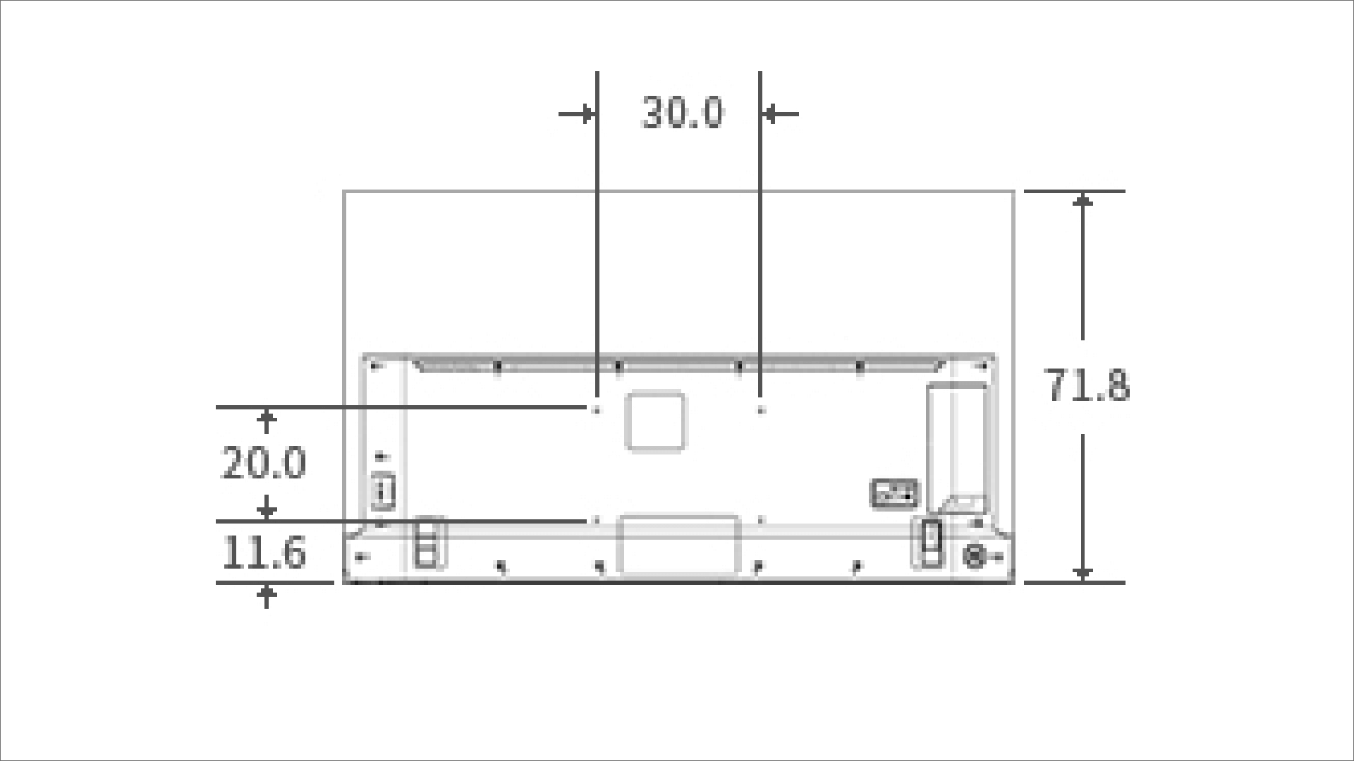
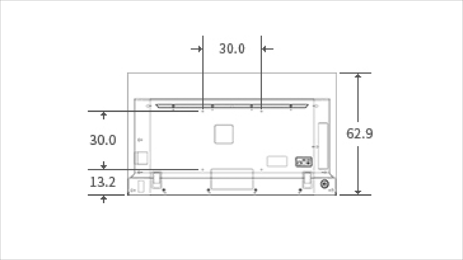
X8400-design-03
  • 背面図は外形の高さとネジ穴の寸法です。

壁取付チルト金具「FPT-TA14D」の取付位置

  • 取付角度:0°~15°
    ネジの種類:M6
    ネジ穴の深さ:13mm